Create Your First Project
Start adding your projects to your portfolio. Click on "Manage Projects" to get started
Basisschool Stattegg (AT)
Project type
School, competitie
Date
Augustus 2024
Location
Stattegg, Oostenrijk
Team
William de Ronde, Arjan van Toorenburg
De nieuwe basisschool Stattegg (Oostenrijk) speelt een centrale en verbindende rol in de verdere ontwikkeling van het dorpscentrum. Het project voegt zich ruimtelijk en functioneel als een speels ensemble van kleine huisjes in de bestaande dorpsstructuur. De school krijgt de structuur van een “leer-dorp”, dat leren en spelen, kleinschaligheid en diversiteit, geborgenheid en interactie, evenals het individu en het collectief met elkaar verbindt. Dit model bevordert leeftijdsoverschrijdend leren en fungeert, naast de leerkrachten en het lesmateriaal, als “derde pedagoog”.
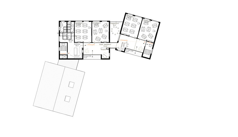
De kleinste eenheid van het leer-dorp is het klaslokaal. Vier klassen, een groepsruimte, een marktplein, een garderobe, lesmaterialen en aangrenzende buitenruimtes vormen samen een leercluster dat verschillende ruimtes en leervormen mogelijk maakt. De clusters bevinden zich op de eerste en tweede verdieping, met de mogelijkheid om een derde cluster toe te voegen. Dankzij de modulaire CLT-constructie en strategische plaatsing van de vluchtwegen is uitbreiding eenvoudig te realiseren.
Op de begane grond bevinden zich centrale functies zoals de hoofdingang, de aula, de bibliotheek, de multifunctionele ruimte en de naschoolse opvang, die overgaan in de centrale groene binnenplaats en het voorplein van de school, dat naadloos in het dorpscentrum overvloeit.
Onze competitie inzending werd door de jury gewaardeerd voor de speelse invoeging van de volumes en de meest actuele pedagigische modellen, echter is een aander voorstel gekozen als winnaar.



















